Оновлено: 17.04.2026
Опис
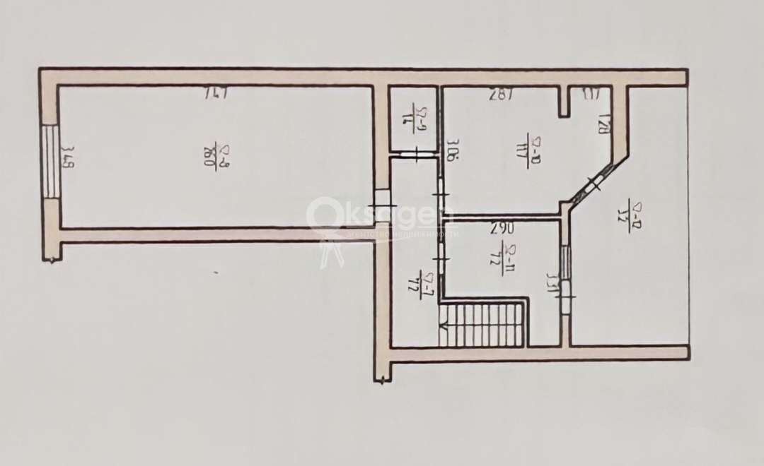
Продаю 2-рівневу 5-ти кімнатну квартиру, з тераси шикарний вид на місто, на річку. Стан від будівельників, вільне планування. Закритий двір, доглянута територія. Планування на дві сторони, 5 кімнат, 2 санвузли. Автономне опалення, встановлений 2 контурний котел. Будинок введено в експлуатацію. Будинок розташований в Інгульському районі, поряд є все потрібне для комфортного проживання. Готові розглянути продаж за державними програмами, будинок введений в експлуатацію у 2021 році. Запрошую на перегляд, дзвоніть!
ID об'єкта: 490595
Ціна: 48,000 $
Загальна площа: 128 м2
Кімнат: 5
Житлова площа: 83 м2
Площа кухні: 20 м2
Поверх: 9
Поверховість: 10
Тип будинку: Житловий фонд від 2011 р.
Тип стін: Цегляний
Планування: Двостороннє
Опалювання: Індивідуальне газове
Ремонт: Після будівельників
Меблювання: Ні
Асфальтована дорога
Вивіз відходів
Газ
Автовокзал
Бювет
Зупинка транспорту
Магазин, кіоск
Парк, зелена зона
Ринок
Супермаркет, ТРЦ
Схожі об'єкти
ТОП
Продам 2к квартиру на Намиві
Продається 2-х кімнатна квартира по вулиці Лазурній. Гарний вид на річку. В квартирі зроблений ремонт, замінен...
20.04.2026
ТОП
Ексклюзив EKS
Продаю 3 кімнатну квартиру на Площі Перемоги...
Продаю 3-кімнатну квартиру, в житловому стані. У квартирі 3 окремі кімнати, меблі залишаються. Цегляний будино...
20.04.2026
ТОП
Продам 2 кімнатну квартиру в Жовтневому
Продам двокімнатну квартиру в новозведеному двоповерховому будинку. Будинок дуже теплий, розташований у тихому...
20.04.2026
Продається простора 3-кімнатна квартира в це...
Продається простора трикімнатна квартира в Корабельному районі (Океанівська, 7-й мікрорайон). Квартира не куто...
17.04.2026

































